남양주별내A25BL 퍼스트포레 신혼희망타운 행복주택 예비입주자모집
안녕하세요 😊 남양주별내A25BL(퍼스트포레) 신혼희망타운 행복주택 예비입주자모집에 관심 있는 분들을 위해 정리해 보았어요. 청약을 처음 준비하시는 분, 신혼부부·예비신혼부부·한부모가족 등 다양한 대상자가 알기 쉽게 일정·자격·주택형·제출서류·계약절차부터 교통 호재·생활 인프라·교육 환경·주변 개발계획까지 모두 담았어요. LH 청약 절차에 맞춰 준비 체크리스트도 정리했으니 신청 직전에 다시 한 번 점검해 보세요.
🔎 개요 📍 입지·주변 🚉 교통 호재 🏬 생활 인프라 📚 교육 환경 🗓 모집 일정 🏠 주택형 ✅ 신청자격 🖥 청약 방법 📄 제출서류 💰 임대조건 ✍ 계약 안내 🔍 비교분석 💡 꿀팁 & 체크리스트 ❓ FAQ 📌 마무리
🔎 개요
• 단지명: 남양주별내A25BL (퍼스트포레) — 신혼희망타운 유형의 행복주택 예비입주자모집입니다.
• 위치: 경기도 남양주시 별내지구 중심 생활권. 별내중심상권과 인접해 생활 편의가 좋아요.
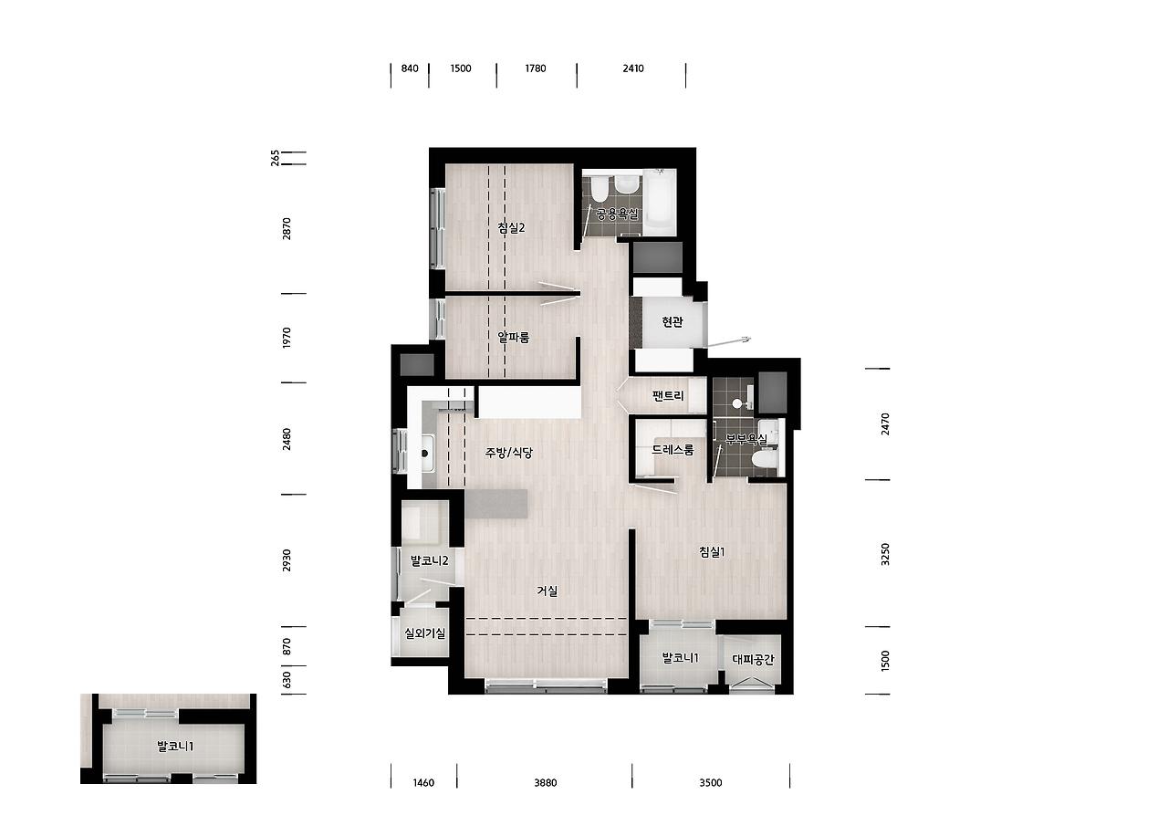
• 주택형: 전용 46㎡, 55㎡ 중심(주거약자형 포함).
• 구조/난방: 철근콘크리트, 지역난방, 무량판 구조 설계.
• 특징: 분양전환 없음(임대형), 유형별 거주기간 제한이 있으니 모집공고의 '거주기간' 항목을 확인하세요.

📍 입지·주변 정보
남양주별내 A25BL 퍼스트포레는 별내신도시 핵심권에 위치해 있어 이미 조성된 상업·교육 인프라를 누릴 수 있어요. 주변에 왕숙천 산책로, 소규모 공원, 체육시설이 있어 주거 쾌적성이 높아요. 특히 별내 중심상권과 근접해 생활 편의시설(마트, 병원, 은행, 관공서 등)을 도보 또는 차량 10~20분 내로 이용 가능해요.
주변 아파트 시세와 비교하면 행복주택 특성상 임대료는 시세보다 낮게 책정되는 편이라 초기 주거비 부담을 줄일 수 있어요. 대신 분양전환이 없으므로 장기 거주 계획이 있는 경우, '임대기간'과 '거주기간 제한'을 꼼꼼히 확인하셔야 해요.
🚉 교통 호재
교통은 이 단지의 강점 중 하나예요. 현재는 경춘선 별내역과 지하철 4호선 별내별가람역을 주로 이용할 수 있고, 자동차로는 수도권제1순환고속도로·세종포천고속도로 접근이 용이해 출퇴근·주말외출에 편리해요.

중요한 미래 호재로는 8호선 연장(별내 연결), GTX-B 노선 계획 및 별내역 복합환승센터 조성 등이 예정돼 있어요. 이러한 철도망 확장 계획은 장기적으로 교통 접근성을 크게 개선해 남양주별내A25BL(퍼스트포레) 신혼희망타운 행복주택의 입지 가치를 끌어올릴 가능성이 큽니다. 단, 교통 호재의 개통 시점은 계획에 따라 변동될 수 있으니 최신 계획은 지자체·교통청 공지로 확인하세요.
🏬 생활 인프라
별내지구는 이미 대형마트(이마트, 홈플러스 등)와 지역 상권이 활성화되어 있고, 카페와 외식업체, 키즈카페, 문화센터 등 가족 단위 생활에 필요한 편의시설이 풍부해요. 의료시설은 중대형 병원 접근성이 좋아 산부인과·소아과 등 육아에 필요한 진료가 어렵지 않아요.
또한 근린공원과 자전거도로, 어린이 놀이터가 잘 조성되어 있어 아이를 키우는 가정에 유리한 환경을 제공합니다. 아파트 단지 내 커뮤니티시설(조경, 어린이집, 작은 도서관 등)이 계획되어 있으면 입주 후 생활 만족도가 더 높아집니다. 공고문에 명시된 단지 내 편의시설 항목을 꼭 확인하세요.
📚 교육 환경
교육환경 측면에서도 별내는 경쟁력이 있어요. 초·중·고교가 인접해 통학이 편리하고, 지역 내 국공립·사립 유치원 및 어린이집이 잘 갖춰져 있어 신혼부부가 자녀를 키우기에 적합해요. 학원가도 별내 중심상권에 형성돼 있어 사교육 선택지도 넓습니다.
특히 예비신혼부부나 신혼부부라면 학교 배정, 통학 거리, 어린이집 대기 현황 등을 미리 확인해 두는 것이 좋아요. 관할 교육청(남양주교육지원청)이나 해당 학교로 문의하면 입학·배정 관련 최신 정보를 얻을 수 있어요.
🗓 모집 일정 (핵심 정리)
| 절차 | 일정(2025) | 비고 |
|---|---|---|
| 청약 신청 | 9월 2일(화) ~ 9월 4일(목) | LH 청약플러스(PC/모바일) |
| 서류제출 대상자 발표 | 9월 11일(목) 14:00 | 청약결과 확인 |
| 서류 제출 | 9월 12일(금) 10:00 ~ 9월 16일(화) 16:00 | 온라인 업로드 또는 등기우편 |
| 예비입주 당첨자 발표 | 12월 5일(금) 14:00 | 동·호수 추첨 |
※ 일정은 공고문 기준이며, 공고문 및 LH 청약플러스에서 최종 확정된 내용을 반드시 확인하세요.
🏠 주택형별 세부 정보
공급 주택형은 전용면적 기준으로 46㎡(A/B/AS 등)와 55㎡(A/B 등)로 구성돼요. 실 사용성, 가구 구성에 따라 적절한 주택형을 선택하세요.





| 주택형 | 전용면적(㎡) | 공용면적(㎡) | 계약면적(㎡) | 금회공급세대수 | 임대보증금(원) | 월임대료(원) | 간단 특징 |
|---|---|---|---|---|---|---|---|
| 46A | 46.78 | 68.99 | 115.77 | 26 | 89,760,000 | 403,920 | 신혼부부/한부모 가족 계층 |
| 46AS | 46.78 | 68.99 | 115.77 | 7 | 89,760,000 | 403,920 | 신혼부부/한부모 주거약자용 |
| 46B | 46.99 | 69.30 | 116.29 | 4 | 90,200,000 | 405,900 | 신혼부부/한부모 가족 계층 |
| 55A | 55.71 | 82.16 | 137.87 | 49 | 104,760,000 | 471,420 | 신혼부부/한부모 가족 계층 |
| 55AH | 55.65 | 82.07 | 137.72 | 5 | 104,760,000 | 471,420 | 신혼부부/한부모 주거약자용 |
| 55B | 55.64 | 82.05 | 137.69 | 38 | 104,640,000 | 470,880 | 신혼부부/한부모 가족 계층 |
| 55BH | 55.64 | 82.05 | 137.69 | 1 | 104,640,000 | 470,880 | 신혼부부/한부모 주거약자용 |
✅ 신청자격 — 유형별 핵심
주요 공급대상은 신혼부부, 예비신혼부부, 한부모가족, 주거약자 등이에요. 공통 조건은 무주택 요건과 소득·자산 기준 충족이에요. 예비신혼부부의 경우 입주 전 혼인 신고를 필수로 요구하니 이 부분을 미리 준비하세요.
- 신혼부부: 혼인기간·자녀 기준 등 공고문의 세부 요건 확인
- 예비신혼부부: 공사 양식의 예비신혼부부 확인서 제출 및 입주 전 혼인 사실 증빙 필요
- 한부모가정: 가족관계증명서 등으로 자격 확인
- 주거약자: 장애인·고령자 등 관련 증빙 필요
🖥 청약 신청 방법 (실전 가이드)
청약은 LH 청약플러스에서 진행되며, PC와 모바일에서 신청 가능해요. 주요 순서는 다음과 같아요.
- LH 청약플러스 접속 → 본인 인증(공동/민간 인증서)
- 지구 선택 → 주택형·공급유형 선택
- 신청서 작성(세대구성원 정보, 연락처, 소득정보 등 입력)
- 제출 전 입력사항 재확인 → 제출
- 서류제출 대상자에 포함되면 온라인 업로드 또는 등기우편으로 서류 제출
Tip: 신청 중 브라우저 캐시, 인증서 문제로 오류가 발생할 수 있으니 미리 '청약신청 연습하기'를 이용해 보세요. 마감일에는 시스템 과부하가 생기므로 접수 기간 초반에 신청하는 것이 안전해요.
📄 제출서류
| 서류명 | 제출 대상 | 제출 방법 | 비고 |
|---|---|---|---|
| 개인정보 수집·이용 및 제3자 제공 동의서 | 신청자 및 세대원 전원 | 온라인 동의 또는 자필 서명 후 제출 | 필수 제출 서류 |
| 금융정보 등 제공 동의서 | 신청자 및 세대원 전원 | 온라인 동의 또는 자필 서명 후 제출 | 자산 및 소득 확인용 |
| 주민등록표 등본 | 신청자 | 주민센터 발급 또는 온라인 발급 | 세대 구성원 모두 표시 |
| 가족관계증명서 | 신청자 | 주민센터 발급 또는 온라인 발급 | 상세로 발급 |
| 혼인관계증명서 | 신혼부부 계층 해당자 | 주민센터 발급 또는 온라인 발급 | 상세로 발급 |
| 소득 입증 서류 | 소득이 있는 세대원 | 재직증명서, 원천징수영수증, 소득금액증명원 등 | 해당 공고문 참고 |
| 자산 입증 서류 | 소유 자산이 있는 세대원 | 토지/건축물 대장, 자동차등록원부 등 | 해당 공고문 참고 |
💰 임대조건·거주기간
행복주택은 시세 대비 저렴하게 공급되는 임대주택이에요. 이번 예비입주자모집의 경우 거주기간 제한이 적용되며, 분양전환은 없으니 임대형 주택이라는 점을 숙지하세요. 구체적인 임대료 산정 방식과 관리비 항목은 계약 시 안내되며, 입주 전 공지되는 '최종 임대료'를 반드시 확인하세요.
✍ 계약 절차 및 전자계약 안내
당첨자는 전자계약(부동산거래 전자계약시스템) 또는 현장계약을 선택해 계약을 진행할 수 있어요. 전자계약의 장점은 확정일자 자동부여, 계약서 보관의 편의성, 전세대출 연계 시 절차 간소화 등입니다. 전자계약 진행에는 공동인증서가 필요하므로 미리 준비해 주세요.
중요: 서류 미제출, 허위기재, 자격미달 등은 당첨 취소 사유가 될 수 있어요. 모든 서류는 원본 또는 공적 증빙이 가능한 서류를 제출해야 하며, 온라인 업로드 시 파일명·확인란을 다시 점검하세요.
🔍 인근 단지·다른 행복주택과 비교
같은 남양주 지역에서 진행되는 다른 행복주택(예: 장현지구, 별내 A24BL 등)과 비교하면, 남양주별내A25BL 퍼스트포레는 이미 형성된 상권과 향후 교통 호재(8호선 연장, GTX-B 등)가 강점이에요. 반면 장현 등 아직 개발 중인 신도시는 인프라 완성도가 낮을 수 있으니 장단점을 비교해 선택하세요.

💡 신청 꿀팁 & 체크리스트
- 청약 전: 공동인증서 유효기간 확인, 주민등록등본·혼인관계증명서 최신 발급
- 청약 기간: 마감 직전 접속 폭주 예상, 가능하면 기간 초반 신청
- 서류 제출: 스캔 파일은 선명하게(파일명에 주민등록번호 등 민감정보는 표기하지 마세요)
- 예비신혼부부: 입주 전 혼인확인서류 준비, 예비신혼부부 확인서 양식 기재 정확히
- 계약 후: 관리사무소 연락처·주차 배정, 입주 일정·관리비 납부방식 확인
❓ 자주 묻는 질문
Q1. 분양전환 되나요?
A1. 이번 퍼스트포레 행복주택은 분양전환 대상이 아니에요. 임대형 주택으로 거주기간 제한이 있습니다.
Q2. 동일 일정 다른 단지와 중복 신청 가능한가요?
A2. 아닙니다. 동일 기간에 공고된 다른 행복주택과 중복 신청 시 무효 처리될 수 있어요. 1세대 1신청 원칙을 지켜 주세요.
Q3. 당첨 후 서류 누락 시 어떻게 되나요?
A3. 서류제출 기간 내에 제출하지 않으면 당첨 취소 또는 예비순위로 넘어갈 수 있으니 기간 엄수하세요.

📌 마무리
정리하면, 남양주별내A25BL(퍼스트포레) 신혼희망타운 행복주택 예비입주자모집은 별내지구의 생활편의성과 향후 교통 호재가 결합된 매력적인 기회예요. 신혼부부·예비신혼부부·한부모가정 등 대상별 요건에 맞춰 서류를 미리 준비하시고, LH 청약플러스에서 신청한 뒤 서류 제출까지 차분히 진행해 주세요. 성공적인 청약 준비를 응원합니다 😊